
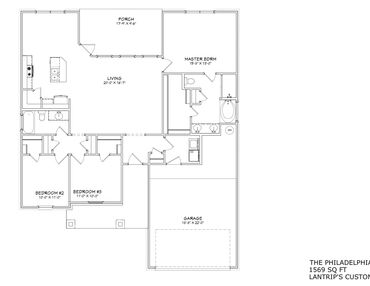
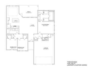
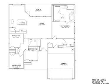
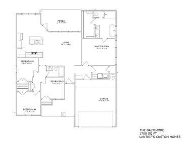
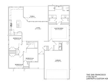
Carriage Hills is a subdivision off of Maple Street and Colony Hill Drive. Lantrip's Custom Homes offers 7 different floor plans for this area, ranging from 1569-1737 sq ft and both 3 and 4 bedroom, and 2 full baths. These homes are built tight, have a 16-SEER HVAC, and "Smart" Thermostat, which will keep electric bills low! As with every Lantrip Custom built home, they will come with a 10-year StrucSure warranty.
Call us today to find out how you can get into one of these new homes.






